北京银泰中心
- 租金报价:13~15.0 元/天⋅㎡
- 出租面积:330-2000 ㎡整层面积:2000 ㎡
- 总建面积:73000 ㎡所在城区:朝阳区
- 楼盘地址:建外大街2号所在商圈:CBD写字楼
- 地铁线路:地铁1号线-国贸站、地铁10号线-国贸站
010-64431423 联系时请说明:“我从‘优楼网’看到...我想问...”
项目概述
北京银泰中心(010-64431423)(
Beijing Yintai Centre)位于
东三环国贸桥西南角,雄踞北京CBD核心区(
更多CBD写字楼出租),是长安街上最高建筑。C座的银泰写字楼以其显赫的位置、独特的空中环廊大堂、总高52层,4米的办公层高、高效快速的双层轿箱电梯、具有架空地板的综合布线系统、精心设计的变频恒温恒湿新风对流系统,体现着北京银泰中心写字楼对最高质量的追求。
银泰中心写字楼曾荣膺 “跨国公司眼中最具城市名片价值的地标建筑” 美誉。目前,世界500强公司、实力雄厚的金融机构、来自欧美的著名律师事务所,以及一些背景优秀的国际、国内企业已顺利入驻。
租赁及交付
银泰中心租赁
租金报价:12-15元/天/平方米
空置面积:260-2101平方米
物 业 费:34元/月/㎡
基本租期:2年
交付标准
矿棉板吊顶:安装到位
LED灯盘:安装到位
VAV/四管制风机盘管:安装到位
空调系统:安装到位
消防喷淋系统:安装到位
消防烟感系统:安装到位
网络地板/水泥地:安装到位
玻璃门/木门:安装到位
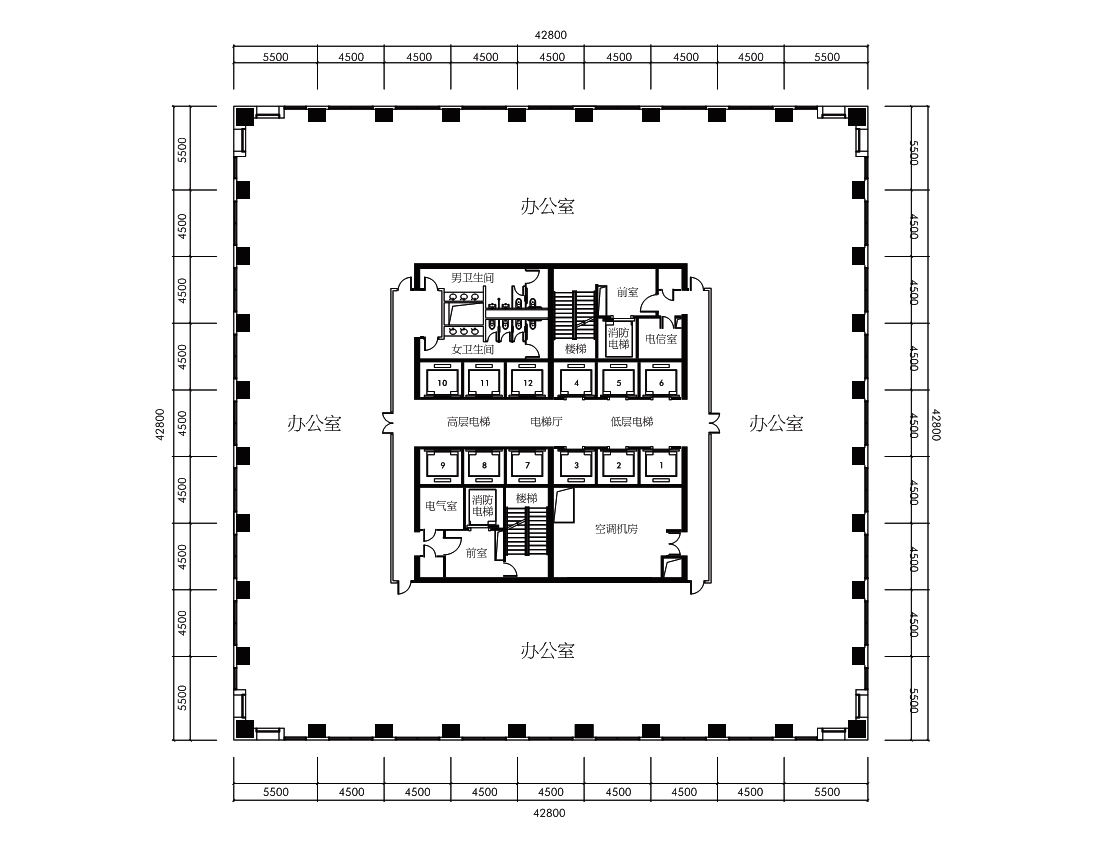
楼层平面图
北京银泰中心标准层建筑面积约2101.6平方米,无中柱式方正空间,最小分隔面积约250平方米,2.7米室内净高、15厘米网络地板。在确保空间划分灵活度的同时可最大化自然采光,充分满足国际化企业对办公室间实用性及舒适性的高标准要求。

【北京银泰中心写字楼平面图】
入住企业
世界五百强之一的思科公司、东京证券交易所、美林集团、加拿大庞巴迪、德事商务服务有限公司等跨国企业,还有一些背景优秀的跨国公司等。
交通配套
北京银泰中心在哪?怎么去北京银泰中心?
北京银泰中心地址:北京市朝阳区建国门外大街2号;邮编:100022。
乘地铁路线: 地铁1号线-国贸站C口;地铁10号线-国贸站G口;
乘公共路线: 1路、4路、668路、667路、28路、57路、938路
猜您感兴趣的
-
-
-
-
-
北京银泰中心
租金:13~15.0
面积:330-2000 ㎡
-
国贸三期
租金:13~15.0
面积:300-2100 ㎡
-
中国尊大厦
租金:13~15.0
面积:2300 ㎡
-
中海广场
租金:13~15.0
面积:142-1863 ㎡
-
嘉铭中心
租金:13~15.0
面积:100-1465 ㎡
-
北京华贸中心
租金:13~15.0
面积:220-2300 ㎡